What I do

Forget lighting that glares, yet still feels too dim, flickers, or simply doesn't feel right. The solution can be surprisingly simple.
I design lighting you'll feel good in.
During the day it supports focus and energy; in the evening it creates a calm atmosphere for relaxation.
I approach lighting as an integral part of the space — balancing function and aesthetics so it not only works well, but also feels right.
Each project is tailored individually to the specific space and the people who live or work in it.
What I can do for you
- On-site consultation
We meet at your place to go through your space, needs, and ideas, and define what makes sense -
Custom lighting design
I design lighting for your space to be comfortable, functional, and visually appealing -
Selection and supply of luminaires
I recommend specific fixtures and can arrange their delivery and installation -
Visualization and layout design
I show you how the lighting will look before implementation -
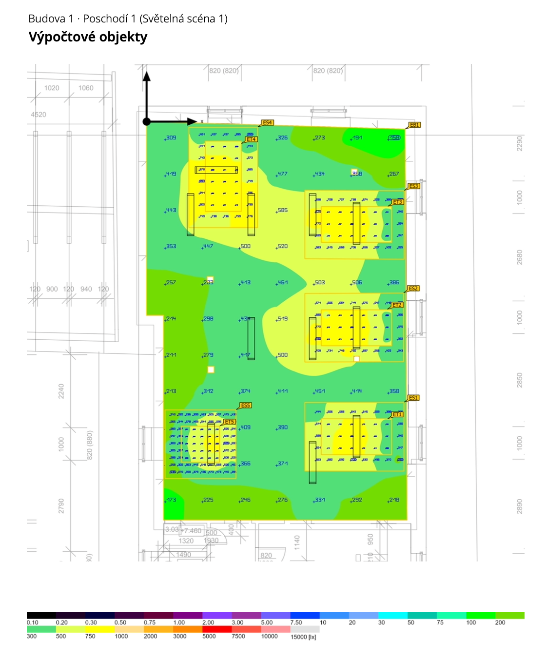
Technical calculations (for projects)
I ensure calculations and compliance with standards where required

